Stunning four-bedroom detached home
Spacious entrance hall leading to bright and airy living spaces
Expansive lounge with large dual-aspect windows
Dining kitchen with fully integrated appliances and bi-fold doors to garden
Three double bedrooms with fitted wardrobes
Landscaped rear garden with decking, pergola, and garden cabin (ideal office space)
Conveniently located close to schools, train station, and local shops
Single detached garage, driveway and EV Charger
EPC Rating B
Council Tax Band G, Renfrewshire
Freehold
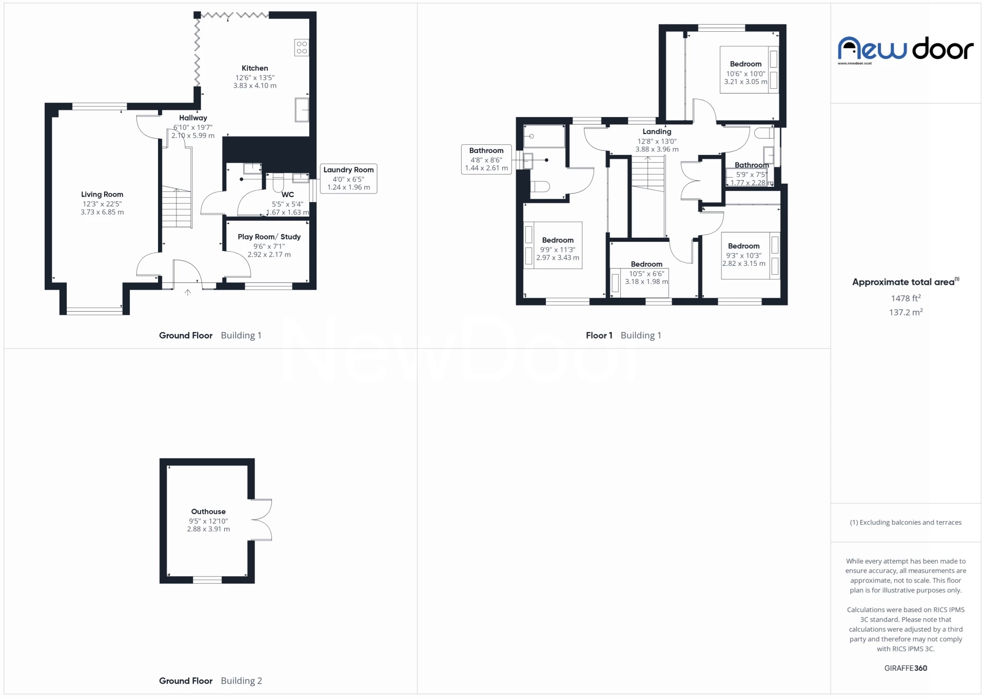
Welcome to this stunning four-bedroom detached home, offering modern living with a focus on spacious, light-filled rooms and seamless indoor-outdoor flow. Situated on Slateford Road, Bishopton, this home is conveniently located close to schools, the train station, and local shops, making it ideal for family living.
As you step into the welcoming entrance hall, your eyes are immediately drawn to the rear of the home, where the garden view sets the tone for the bright and airy living spaces. The expansive lounge, featuring large dual-aspect windows, floods the room with natural light, creating a relaxing and inviting atmosphere.
The heart of the home is the spacious dining kitchen, equipped with fully integrated appliances. Bi-fold doors open out to the garden, providing a seamless transition to outdoor living and perfect for entertaining. A convenient utility room and a guest WC are accessible from the hallway, adding practicality to daily life. There is also useful understairs storage, ideal for keeping household essentials organized.
To the front of the property, a versatile room serves as a playroom or study, catering to modern family needs.
The upper level features three generously sized double bedrooms, each equipped with fitted wardrobes for ample storage. The fourth bedroom is single. The primary bedroom boasts an en-suite shower room for added privacy and convenience.The stylish, fully tiled family bathroom is equipped with a modern digital shower over the bath, combining luxury and practicality.
The landscaped rear garden offers a private outdoor retreat, accessible via the bi-fold doors from the kitchen. A decking area with a pergola creates an oasis for relaxation and outdoor dining, blending seamlessly with the garden’s natural charm. A garden cabin, ideal for use as an office space, adds versatility to the outdoor area. A single detached garage is situated to the side of the property, providing secure storage and additional parking. The front garden and driveway provide off-road parking, enhancing the property’s appeal.
This exquisite four-bedroom detached home combines elegant living spaces with practical family-friendly features. Its modern design, thoughtful layout, and high-quality finishes make it a truly desirable property.
For more information or to arrange a viewing, please contact our sales team.
|  | ||
|  |  |  | 
|  |   |   | 
|  | ||
|  | ||
|  |  |  | 
|  |   |   | 
|  | ||
IMPORTANT NOTICE
Descriptions of the property are subjective and are used in good faith as an opinion and NOT as a statement of fact. Please make further specific enquires to ensure that our descriptions are likely to match any expectations you may have of the property. We have not tested any services, systems or appliances at this property. We strongly recommend that all the information we provide be verified by you on inspection, and by your Surveyor and Conveyancer.